Wydzielone gabinety lekarskie zainfekowanych COVID-19

Centrum testowania na koronawirusa z kontenerów ELA

Potrzebujesz dodatkowego miejsca, aby wykonywać testy na koronawirusa? Zwróć się do nas. ELA Container dostarcza także mobilne systemy kontenerowe, w których można np. testować osoby pod kątem zakażenia wirusem. Ustawiliśmy już kilka „centrów testowania na koronawirusa” w naszym macierzystym regionie i oferujemy nasze kontenery wszystkim urzędom i placówkom służby zdrowia. Można je ustawić szybko, profesjonalnie i w dowolnym miejscu.

Korzyści
Oddzielne wejście dla personelu
Bezdotykowy włącznik światła poprzez czujnik ruchu
Śluza bezpieczeństwa dla personelu
Natychmiast gotowy do użycia & szybko dostarczony
Do ustawienia w dowolnym miejscu
Innenansicht ausgestatteter Besprechungsraum Gesundheitswesen

Pomieszczenia kontenerowe ELA do poufnych rozmów

Gabinety w przychodni muszą gwarantować ochronę i poufność – tylko wtedy lekarz może otwarcie i szczerze rozmawiać z pacjentem. Dlatego ELA Container kładzie nacisk na stosowne poczucie przestrzeni w gabinetach ulokowanych w mobilnych przychodniach lekarskich.

Więcej szczegółów
Container Testzentrum

Kontenery ELA jako centrum testowania na koronawirusa

Na podstawie naszych dotychczasowych doświadczeń z dostawą centrów testowania na koronawirusa proponujemy system kontenerowy składający się z dwóch kontenerów premium ELA. Na powierzchni 36 m² mieszczą one wszystkie niezbędne udogodnienia: od pomieszczeń przeznaczonych do różnych zadań przez sanitariaty, jak WC i umywalka, po pełną klimatyzację.

Więcej szczegółów
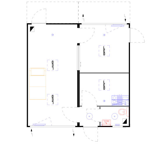
Grundriss Corona Testzentrum ELA Container

Praktyczny rozkład centrum testowania

Rozkład systemu kontenerowego jest funkcjonalny i przemyślany od strony praktycznej. W systemie znajdują się łącznie trzy pomieszczenia. Do gabinetu badań prowadzą dodatkowe drzwi z wiatrołapem, przez które można wchodzić i wychodzić. Pomieszczenie robocze dla personelu graniczy z gabinetem badań i oddzielone jest od niego drzwiami. Zanim pacjenci zostaną przebadani, muszą zarejestrować się w zewnętrznym okienku. Do każdego pomieszczenia można wejść, nie przechodząc przez inne.

🔎 Zobacz plan

Zarejestruj się u nas, aby otrzymywać dalsze informacje. Chętnie udzielimy porad i przygotujemy indywidualną ofertę.

 

Wyślij teraz zapytanie

 

 

Pobierz arkusz danych

Infolinia
Fachowy doradca na miejscu